Residential Complex
Riyadh, Saudi Arabia
Interior
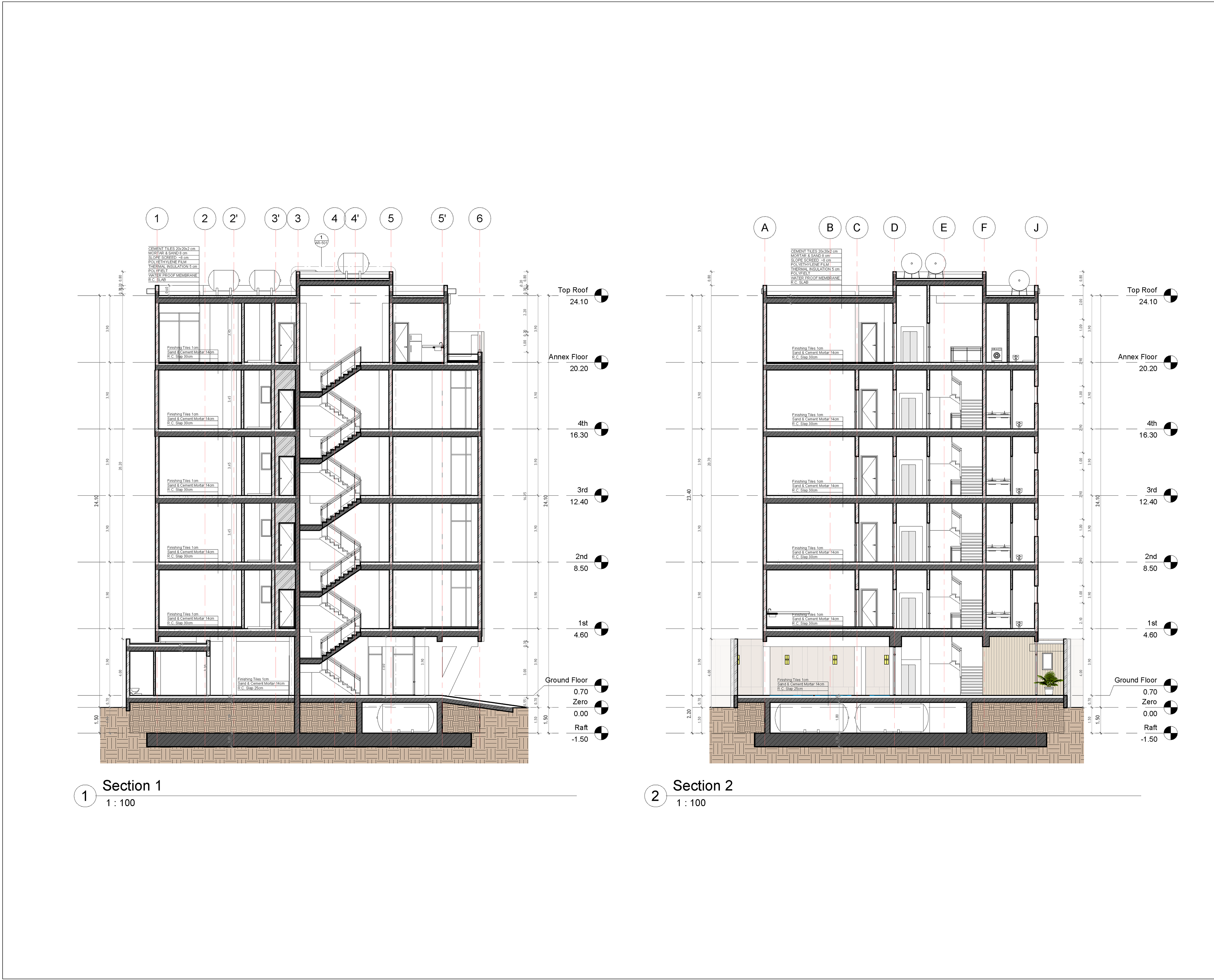
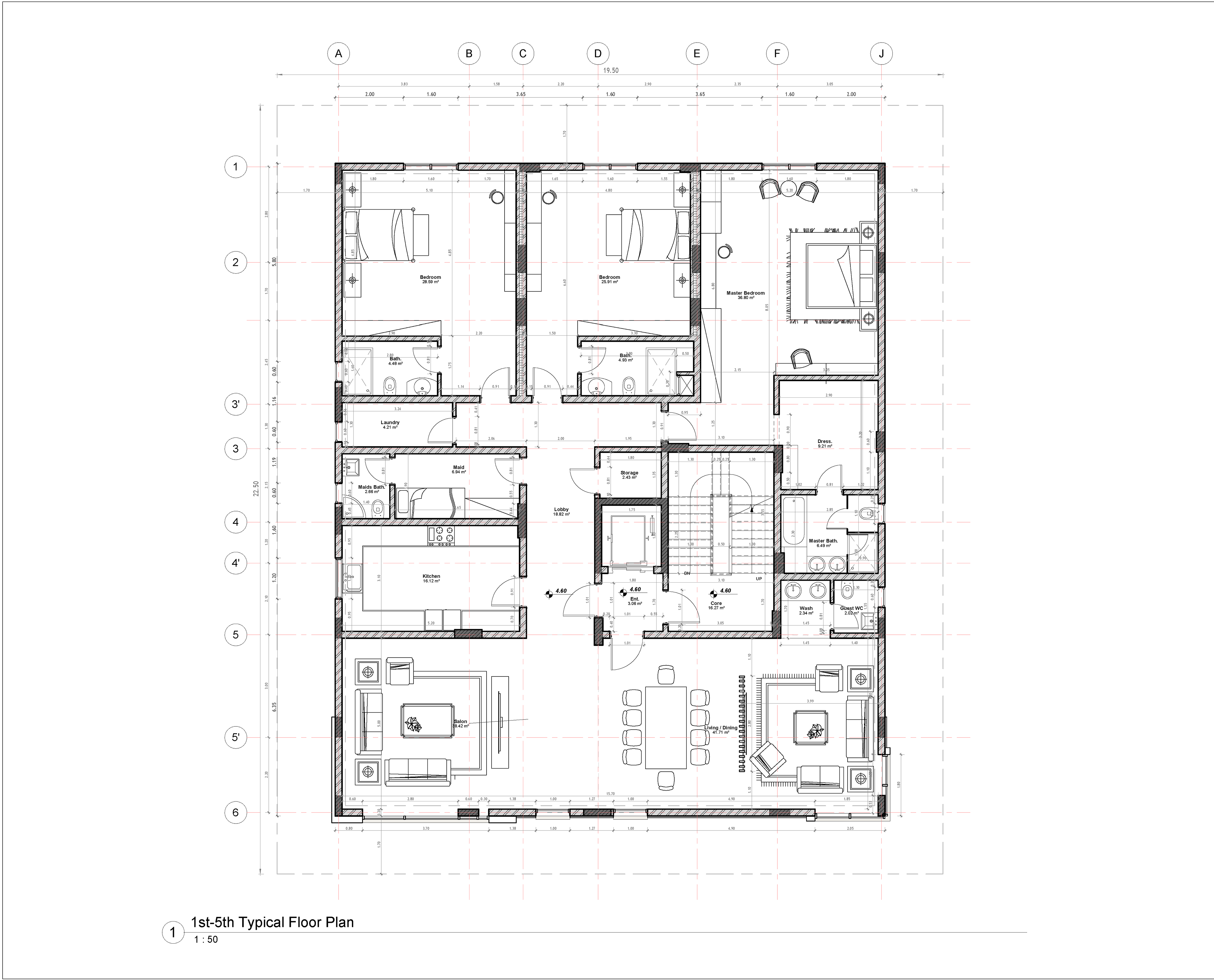
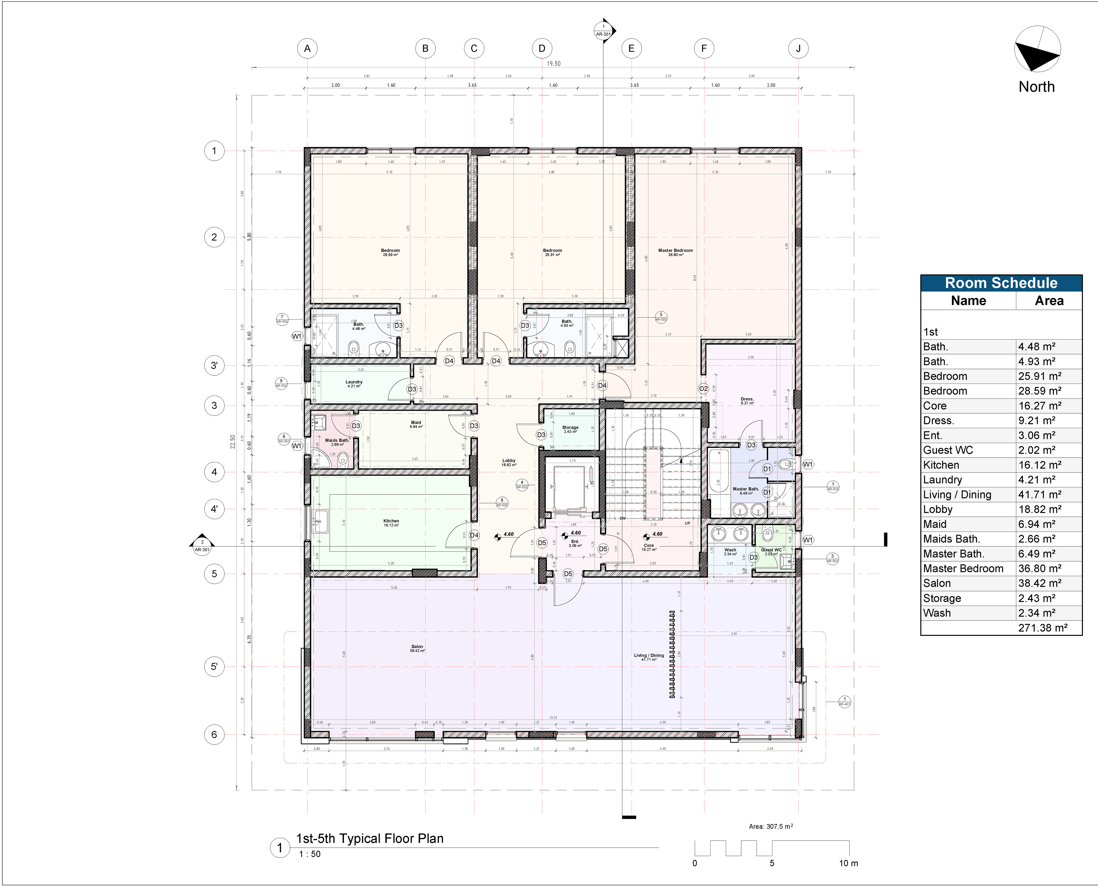
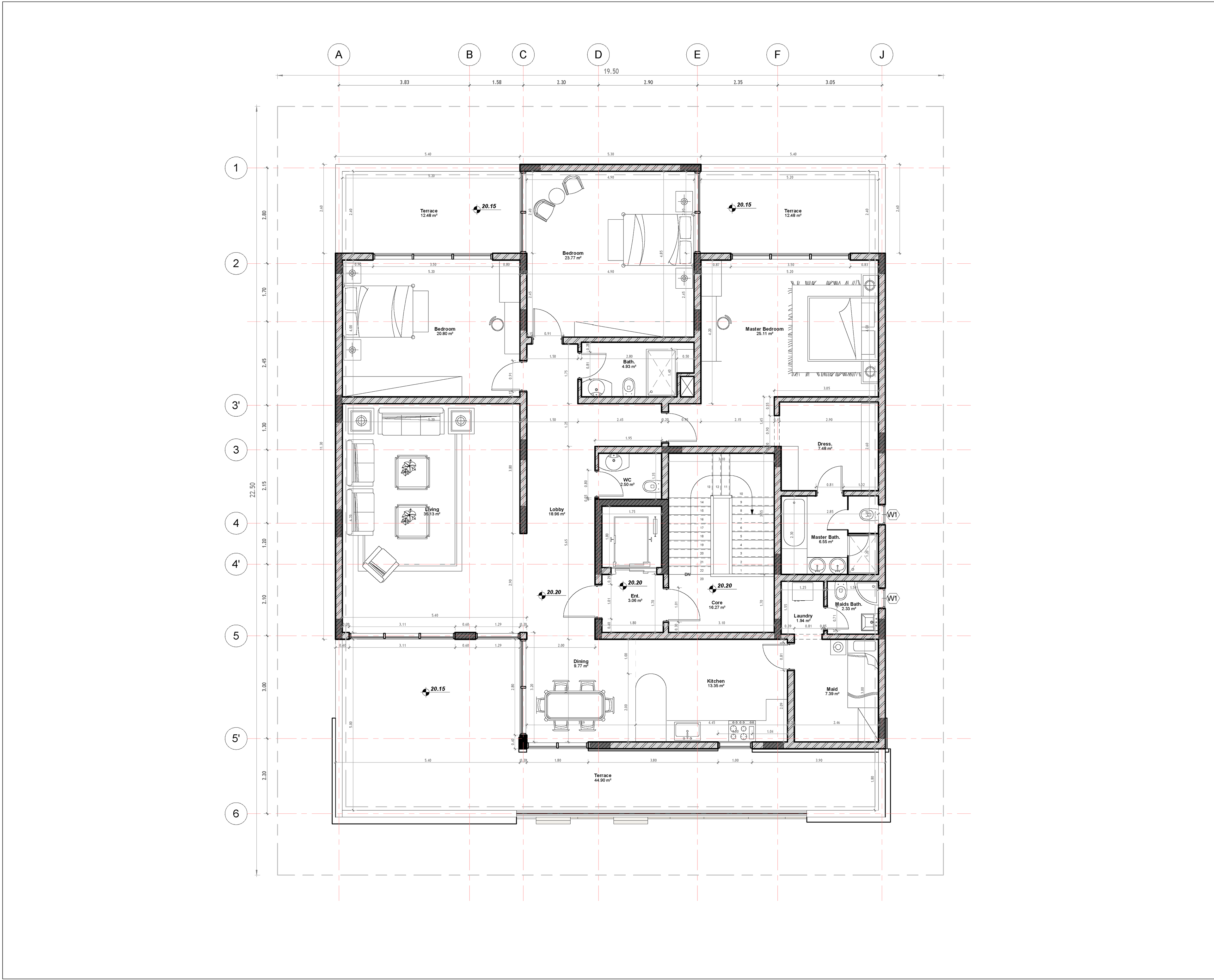
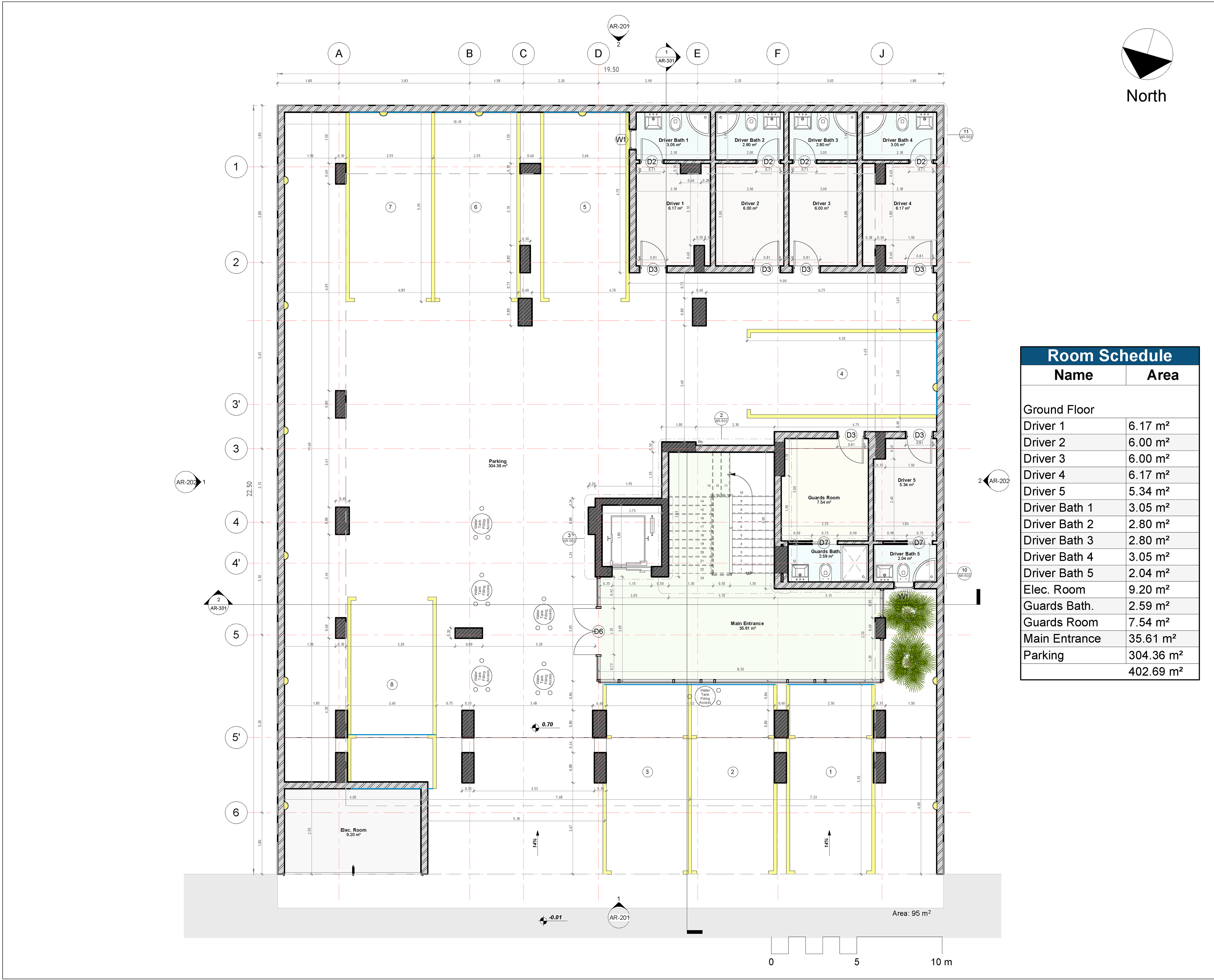
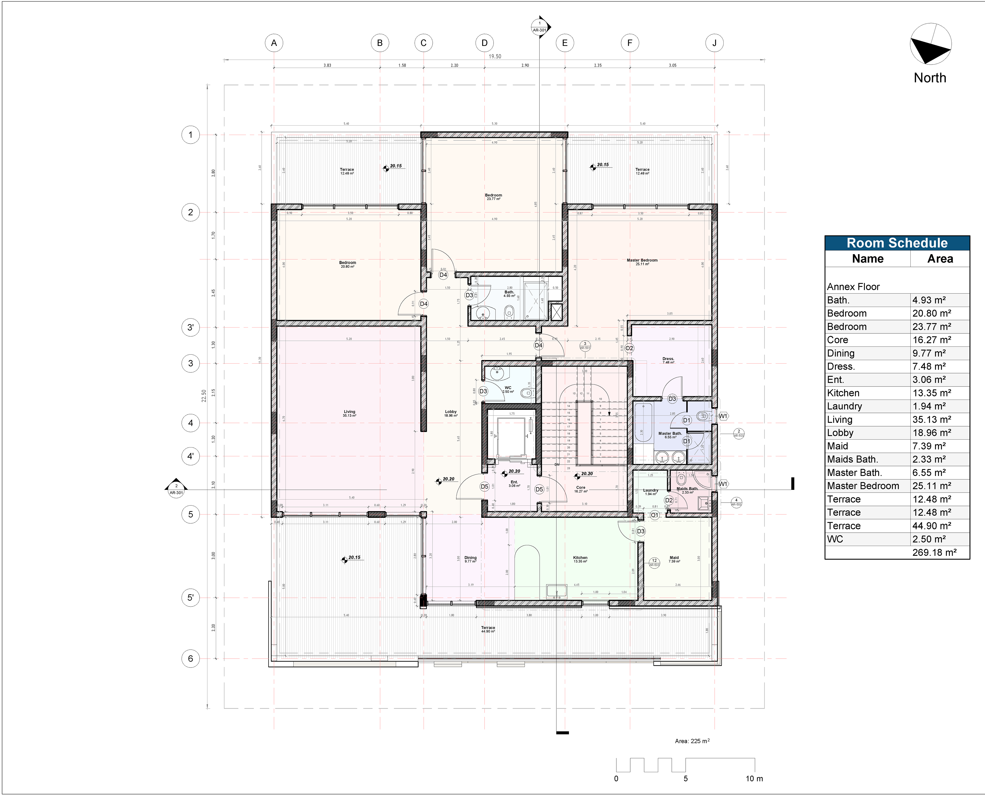
Plan, Elevations & Sections
Location

You may also like

Back to Top